高壓開關柜基本知識,圖形分析
高壓開關柜基本知識,圖形分析詳細資料由專業的低壓開關柜、低壓配電柜、低壓配電箱報價廠家為您提供。
開關柜(也稱為成套開關或成套配電裝置):是一種主要由斷路器組成的電氣設備;是指制造廠根據電氣一次主接線圖的要求,對有關高低壓電器(包括控制電器、保護電器、測量電器)以及母線、載流導體、絕緣子等的要求。組裝在封閉或開放的金屬柜中,作為電力系統中接收和分配電能的裝置。





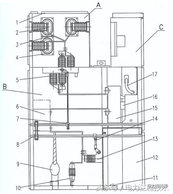
第二,高電壓開關柜成分

a、母線室b、斷路器室c、繼電器室
1、泄壓裝置2、主母線3、分支母線
4、母線套管5、隔離開關6、電流互感器7、隔離開關操作機構8、聯鎖機構
9.電纜10、氧化鋅避雷器11、接地母線
12、控制小母線13、接地開關
14、接地開關操作機構
15、真空斷路器16、加熱裝置
17輔助插頭
高壓配電室10kV段


高壓真空斷路器
A.公共汽車房
B.斷路器室c .電纜室
D.中繼室



(此處添加了循環卡,請查看今天的標題客戶)
更多選型規格報價定制等問題可及時聯系廠家,以上就是高壓開關柜基本知識,圖形分析全部內容。
- 上一篇:脈沖診斷開關柜設備
- 下一篇:高壓開關柜配置知識,純干貨!
